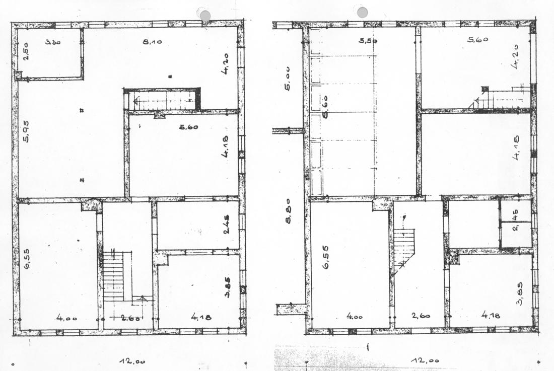
Erd- und Obergeschossgrundrisse des Pferdestalls. Im Erdgeschoss (links) sind in dem nordöstlichen Raum (oben links) sechs Pferdeboxen erkennbar. Der Zugang in den Stall erfolgte durch ein zweiflügeliges Tor (oben rechts). Hier befand sich auch ein Zugang zum Heuboden. Plan: vermutlich Hamburger Gefängnisbehörde für eine Bestandsaufnahme unmittelbar nach der Übernahme des britischen Internierungslagers CIC 6, nicht datiert. (JbH)