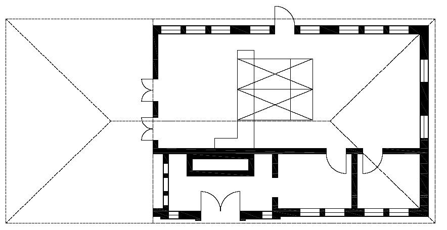
Grundrissrekonstruktion des im Winter 1944 errichteten massiven Krematoriums. Neben dem großen Raum mit zwei Verbrennungsöfen gab es zwei Nebenräume, in denen Verpackungsmaterialien und Urnen gelagert wurden und vermutlich eine Schreibstube, die möglicherweise auch als Unterkunft für den Kapo des Krematoriumskommandos diente, eingerichtet war. Plan: Andreas Ehresmann, 2004. (Privatbesitz Andreas Ehresmann)